379SUH
1. Preis: Neuer Hauptsitz F. G. Pfister-Stiftung, Suhr
Einstufiger Studienauftrag im Einladungsverfahren
Auftraggeberschaft: F.G. Pfister Immobilien AG, Suhr
Planung und Ausführung: 2025-2028
-
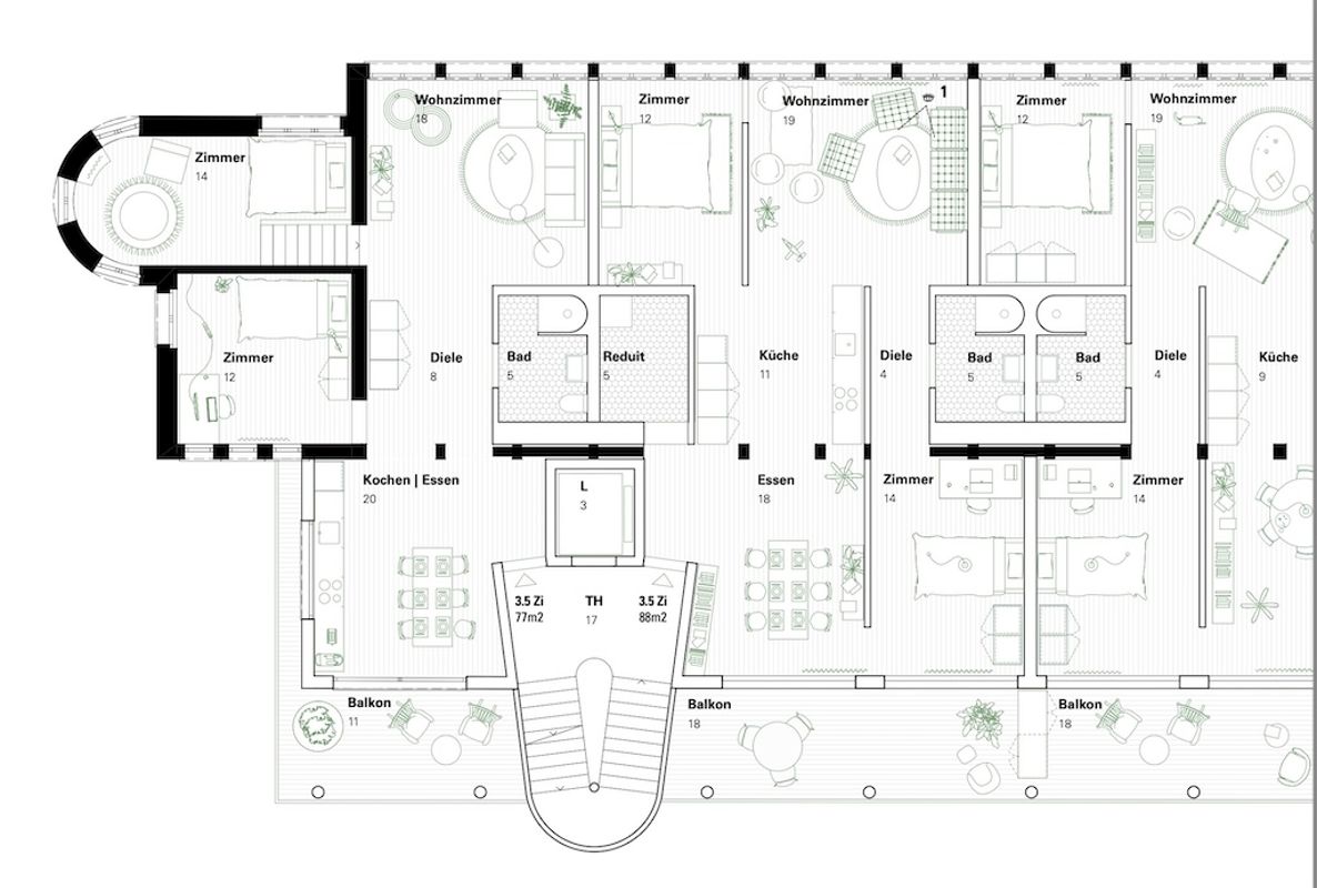
Wir freuen uns über den Gewinn des Studienauftrages mit einem Projekt, das die Geschichte des Ortes weiterführt und das bestehende Manufakturgebäude der Möbel Pfister AG mit zukunftsfähigen Konstruktionen in die neue Komposition eingebunden wird. Neben dem Hauptsitz der Stiftung an der Tramstrasse in Suhr entstehen neue Räume für eine Bibliothek, für den Service Public der Gemeinde Suhr, Gewerberäume und rund 25 neue Wohnungen mit einem schönen neuen Garten. Das Thema des Zusammenspiels von bestehendem Ateliergebäude, dessen Anbau mit Hanfsteinen und einer gartenseitigen hölzernen Erweiterung schafft eine atmosphärisch dichte Ausgangslage für einen wunderbaren neuen Ort.
Architektur: Luca Selva Architekten | Studio Palermo
Landschaftsarchitektur: Lars Ruge Landschaften
Tragstruktur: Schnetzer Puskas Ingenieure AGVisualisierung: Julia Werlen