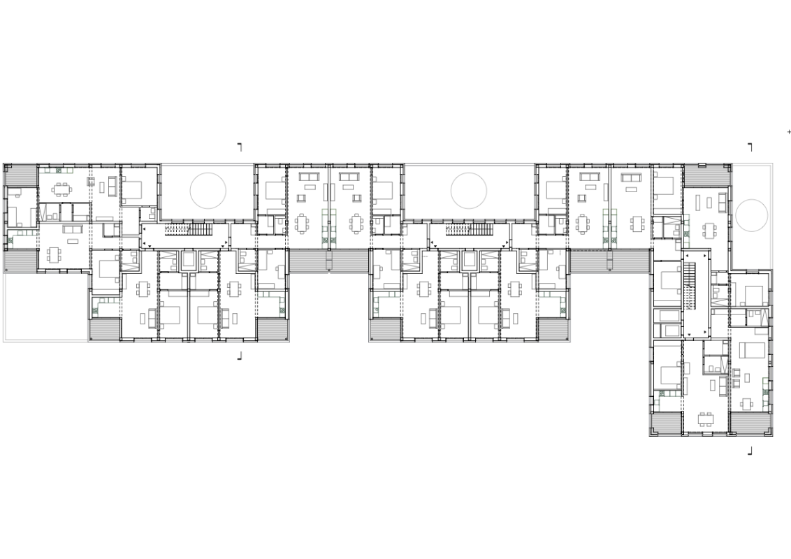
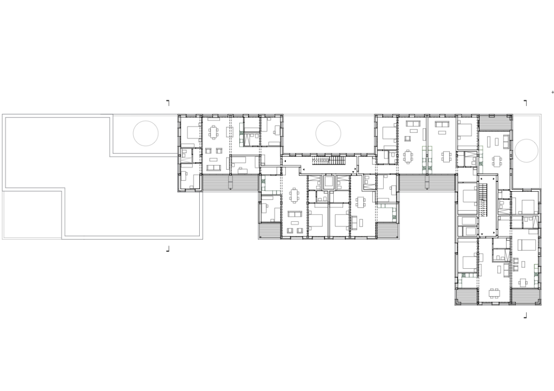
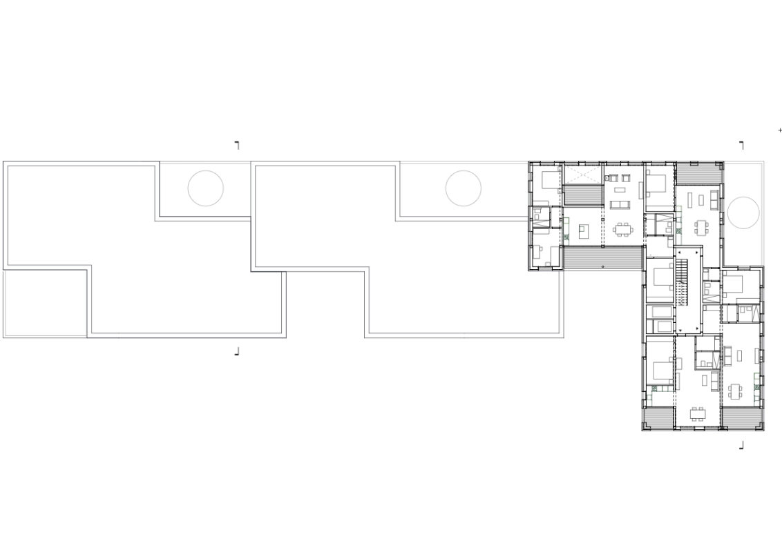
351RAN

Wettbewerb Areal Rankacker, Allschwil

Studienauftrag auf Einladung mit Überarbeitung, 2023-2024
Auftraggeber:in: Basellandschaftliche Pensionskasse BLPK