293MAB
«Musik Akademie Campus 2040», Basel
Studienauftrag im selektiven Verfahren
ARGE Harry Gugger Studio, Basel | Luca Selva Architekten, Basel
Auftraggeber: Musik-Akademie Basel
Studienauftrag 2022
-
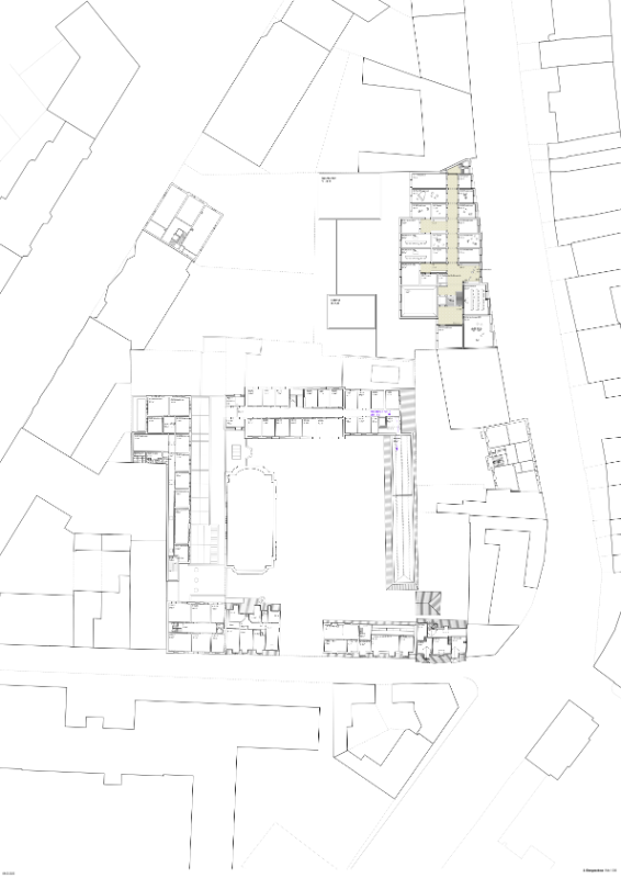
Die Erweiterung der Musikakademie in Basel repräsentiert ein innovatives und nachhaltiges Musikhaus in Holz-, Beton-, Lehmbauweise, welches aus seiner konstruktiven Logik entwickelt wurde und dass die bestehenden Bauten der Akademie, insbesondere die Bibliothek, baulich und betrieblich minimal tangiert. Wir halten uns bei der Planung an Luigi Snozzi der gesagt haben soll: «Jeder Eingriff ist Zerstörung darum zerstöre mit Verstand».
Typologisch betrachtet gibt es im Bestand hofartige, repräsentative und gartenartige, verwunschene Freiräume sowie das begrünte, nicht begehbare Dach der Bibliothek. Das Gesamtprojekt bietet die Chance die Freiraumsituation zu stärken und aufzuwerten, dies insbesondere im nördlichen Bereich des Areals.
Alle wesentlichen Eingriffe konzentrieren sich auf das neue Stadtfoyer, das ehemalige Haus 5. Hier führt der Zugang zum Nord-Campus über das Stadtfoyer, das den Moser-Garten direkt mit der Stadt verbindet. Mit dem neuen Hauptzugang wird die Erschliessung des Campus vom Leonhardsgraben geklärt