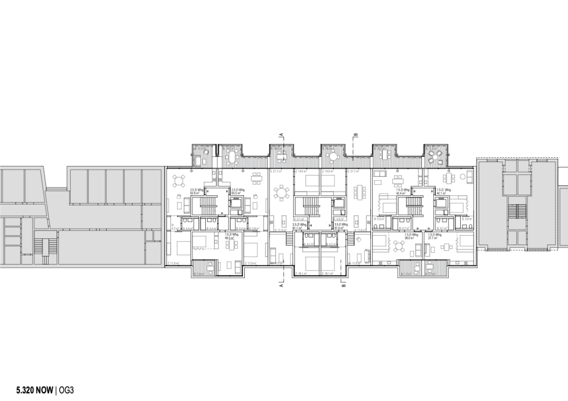
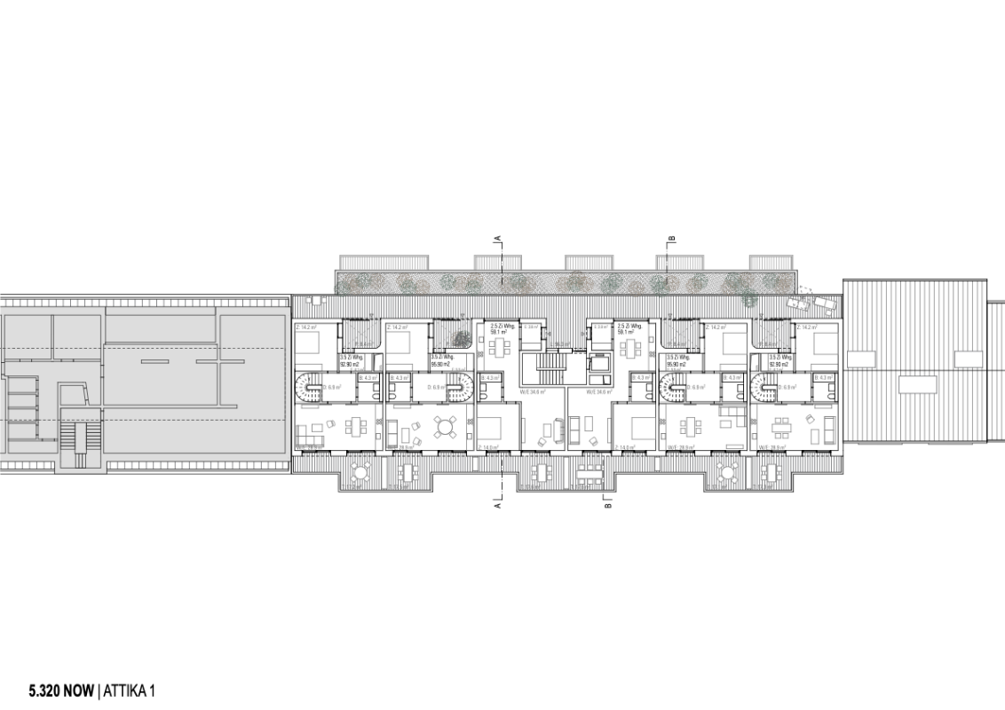
320NOW

Studienauftrag Neubau Nonnenweg, Basel
Auftraggeber: Stiftung Focus Basel
Studienauftrag 2021