244CPV
Neubau Hofgebäude und Sanierung denkmalgeschützter Fassaden
Thiersteinerallee 7-11 und 19-21
Auftraggeber: CPV / CAP Pensionskasse Coop
Projekt und Ausführung: 2018-2021
-
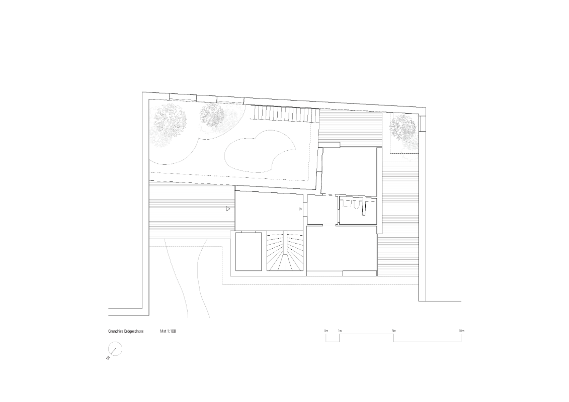
Die CPV/CAP Pensionskasse Coop ist Eigentümerin der Liegenschaften Thiersteinerallee 7-11 sowie 19-21 im Gundeldingerquartier in Basel. Die fünf denkmalgeschützten Gebäude aus der Jahrhundertwende bilden dabei einen gemeinsamen Planungsperimeter und wurden allesamt von aussen saniert. Des Weiteren wurden bei den Häusern 19 und 21 die Dachgeschosse ausgebaut. Dabei konnte der Dachbereich zu zwei Maisonette Wohnungen und je zwei Geschosswohnungen ausgebaut werden. Zusätzlicher Wohnraum entstand zudem im ehemals als Lagerumschlag mit Lagergebäude genutzten Hinterhof der Liegenschaft 9. Das Neubauvolumen mit den zwei neuen Wohneinheiten auf drei Geschossen fügt sich dabei behutsam zwischen die bestehenden drei Brandmauern ein, indem es die Mauern je einmal berührt. So entstanden sehr spezifische Orte, welche ganz unterschiedliche Eigenschaften und Qualitäten aufweisen und dem ungenutzten Hinterhof wieder Leben einhauchen.