280SMB
Erweiterung Schulhaus Meiriacker
Selektiver Projektwettbewerb
Auftraggeber: Gemeinde Binningen
Wettbewerb: 2019, 2. Preis
-
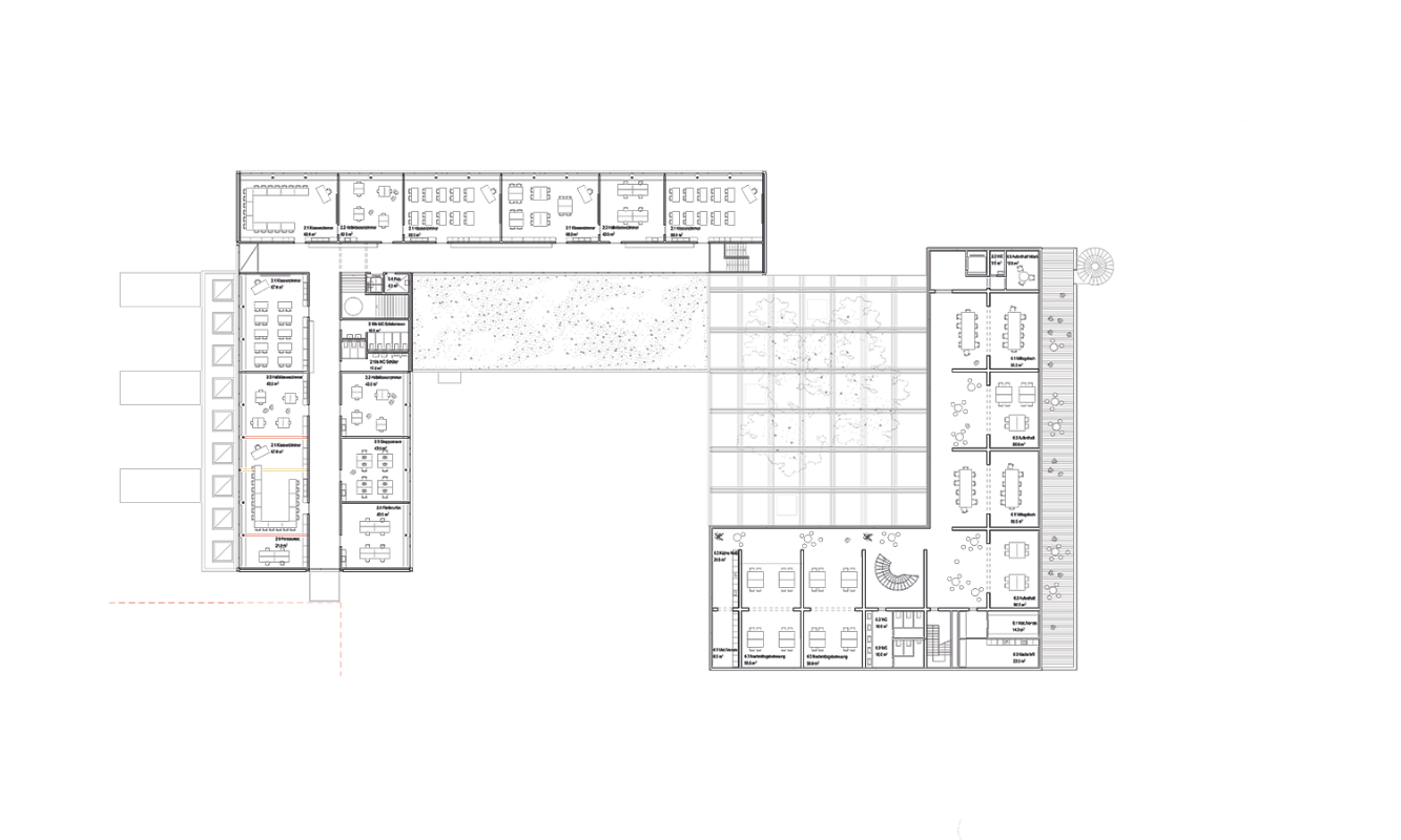
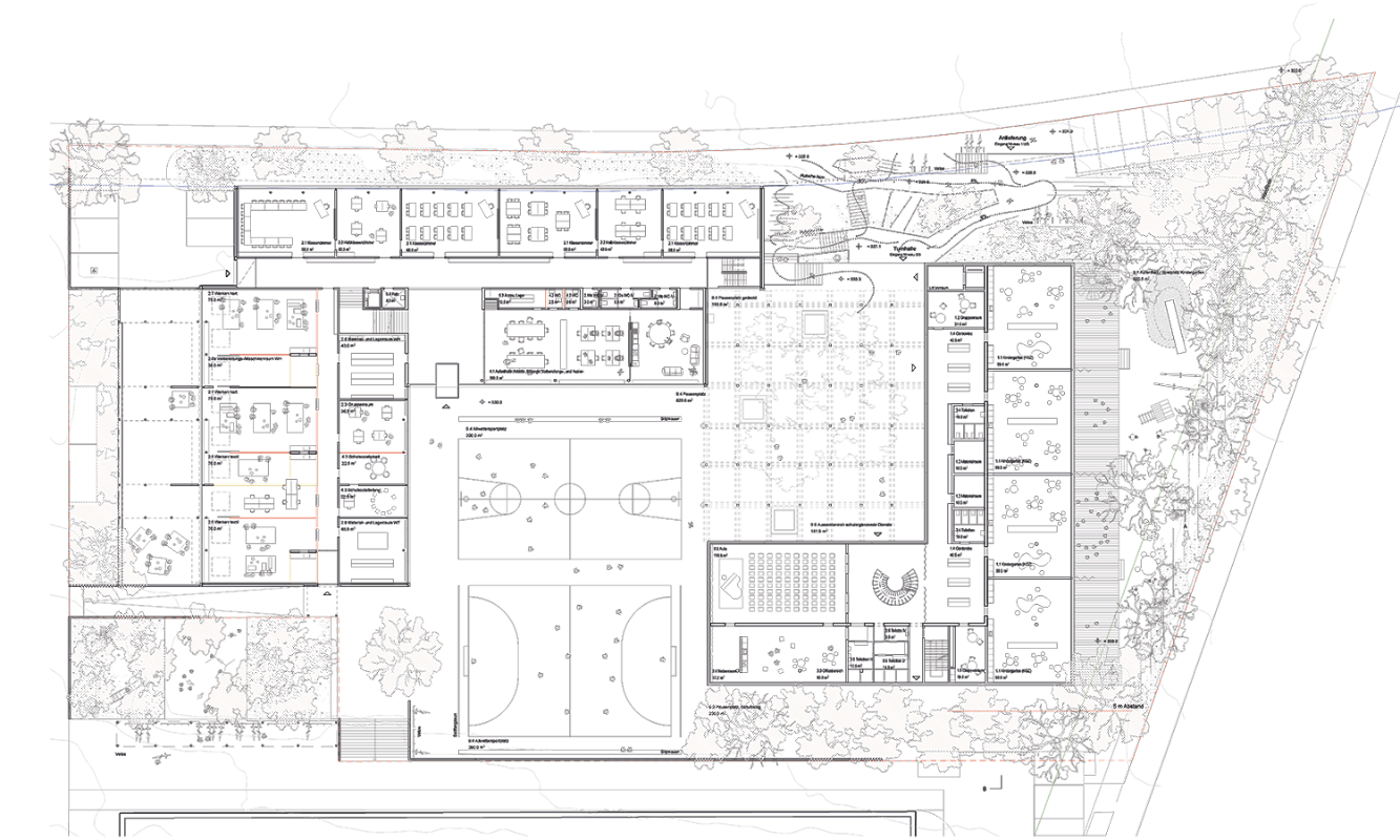
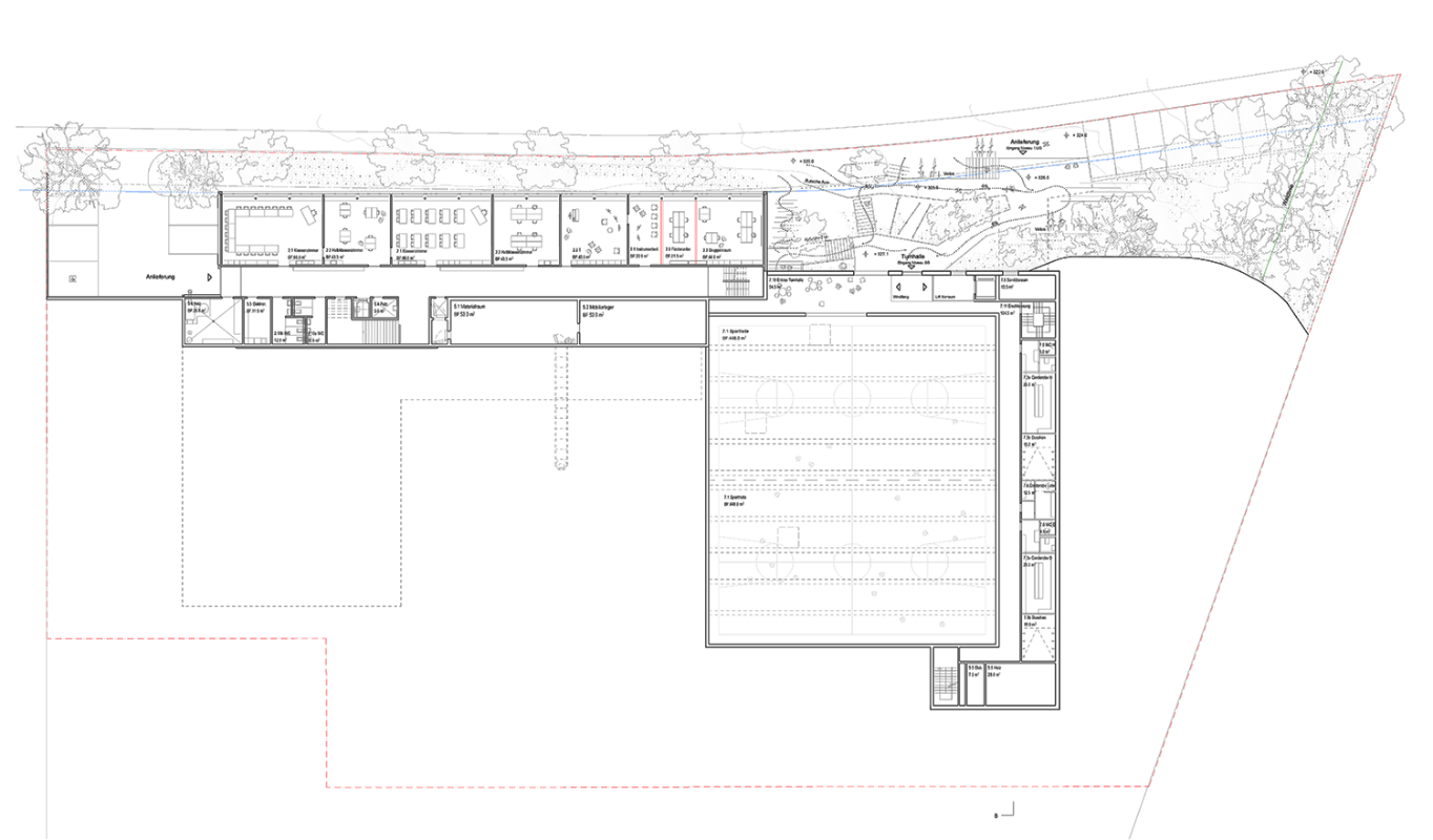
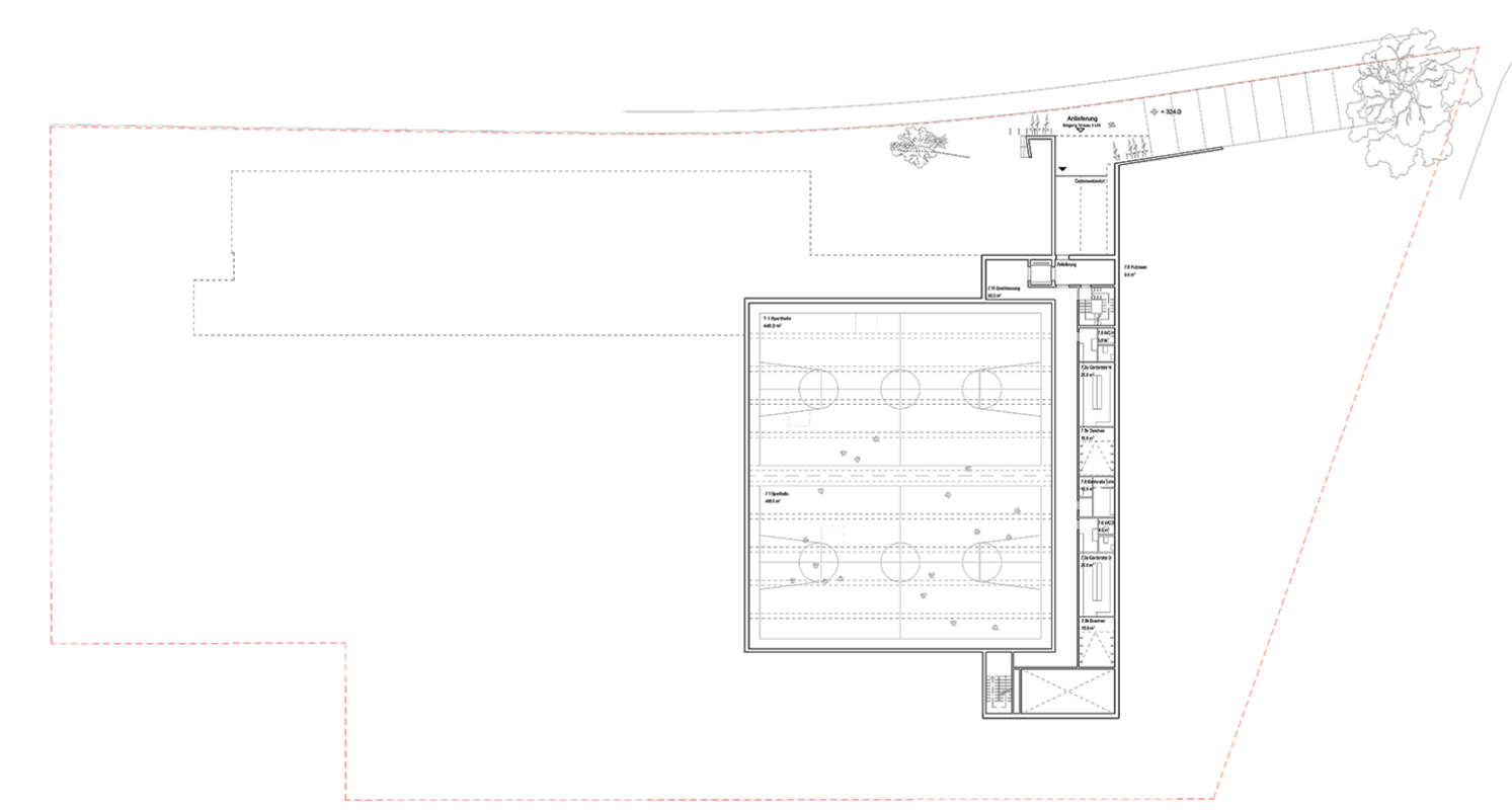
Das Thema der Erweiterung einer bestehenden Schulanlage wird als Chance verstanden, die undifferenzierte Situation mit dem Erweiterungsbau zu klären und umfassend aufzuwerten. Hier wird nicht der Gegensatz zum Bestand gesucht, hier wird vielmehr über den räumlich und kontextuell präzisen Erweiterungsbau eine neue Gesamtanlage mit qualitätsvoller Identität vorgeschlagen, der explizit auch den Bestand aufwertet.