166ABU
2000-Watt-kompatible Gebietsentwicklung «Gishalde – Steinbille»
Projektstudienauftrag Teilgebiet «Oberstadt»
Studienauftrag auf Einladung
Auftraggeber: Franke Immobilien AG, Aarburg
Studienauftrag: 2014, 1. Preis Haus Süd
Ausführung: 2016-2017
-
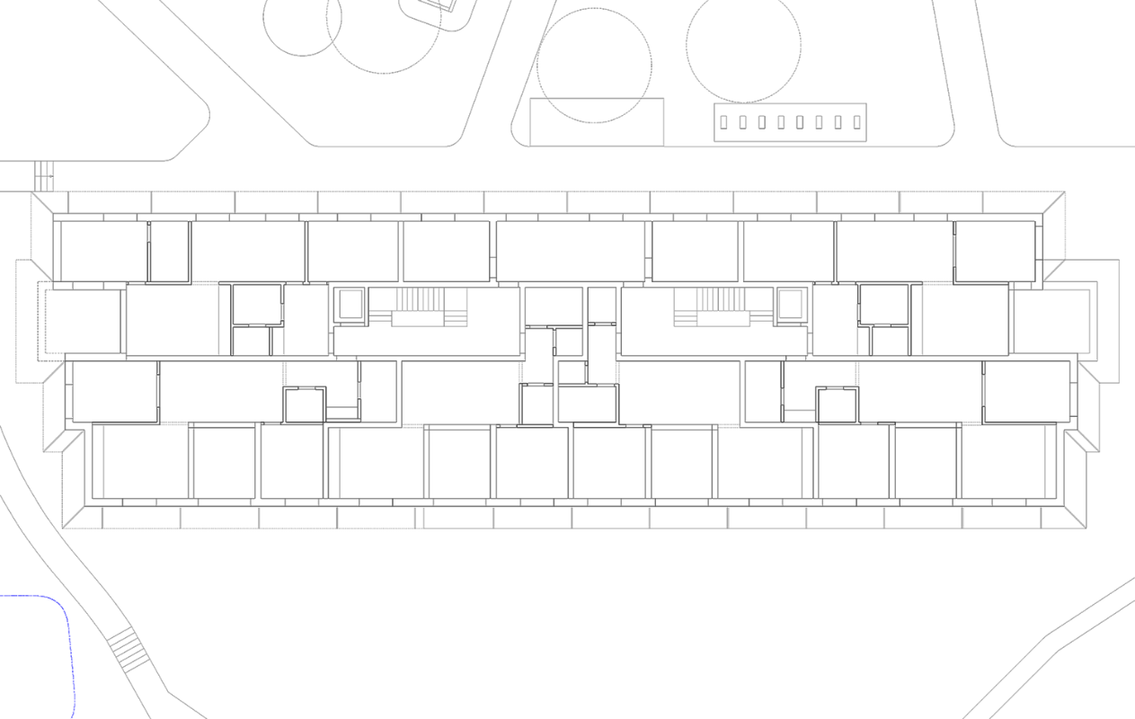
Die Setzung der fünf unterschiedlichen Volumen um einen gemeinsamen Platzraum, von wo aus alle Häuser erschlossen werden, betont den Verlauf der vorhandenen Topografie und ermöglicht spannende Ausblicke in die umgebende Landschaft ebenso wie über die Stadt Aarburg. Die aussenräumlichen Qualitäten finden ihre Fortsetzung in den differenzierten Grundrisstypologien. Zwei- und dreispännig angelegt, sind die Häuser statisch und installativ konsequent und effizient ausgebildet. Die klare Grundstruktur zeigt vielfältige Möglichkeiten zur Grundrissentwicklung der rund 145 Wohnungen. All diese Massnahmen tragen dazu bei, dass die sehr umfassenden Vorgaben der 2000-Watt-Gesellschaft eingehalten werden können.