258PUL
Logements et surfaces administratives Pully-Chamblandes-Dessous, Pully
Projektwettbewerb
Auftraggeber: Etablissement Cantonal d'Assurance
Wettbewerb: 2018, 3. Preis
-
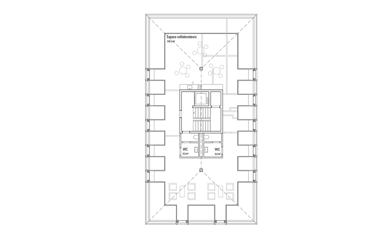
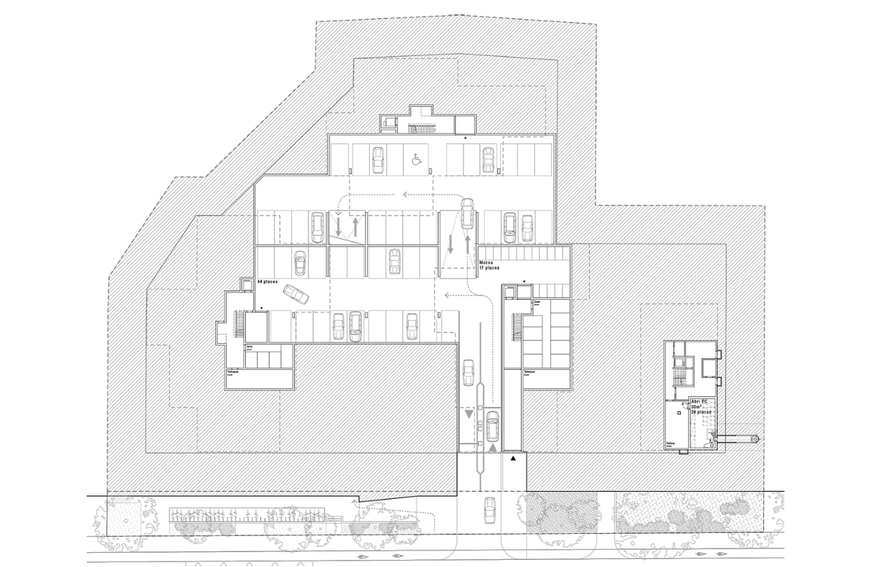
Der Ort ist an der Kantonsstrasse gelegen und ist durch eine Südlage mit Seesicht geprägt. Das bis anhin als Bürostandort genutzte Grundstück soll neu einem adäquaten Wohnen zugedacht werden. Den grossen Herausforderungen von Lärm und Aussicht wird mit drei gestuften Baukörpern begegnet, welche zum einen für alle Wohnungen eine gute Aussichtsituation schaffen, zum andern aber auch einen schönen Aussenraum mit klarer Adressierung bilden. Die vielspännig erschlossenen insgesamt rund 60 Wohnungen zeichnen sich durch fliessende Grundrisse aus, welche es immer wieder verstehen, den Bezug zur prägenden Landschaft herzustellen.