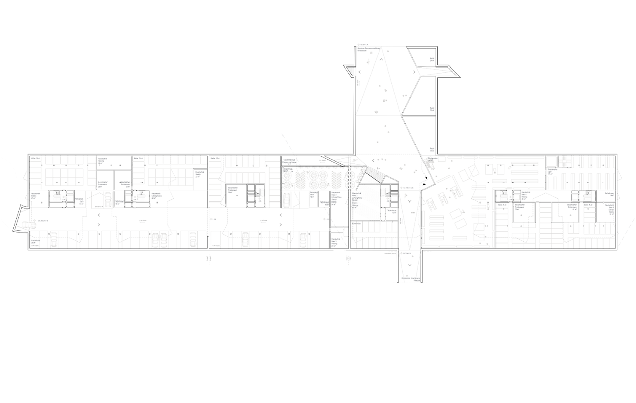
249BBN

Projektwettbewerb Bern Bümpliz Nord

Anonymer Projektwettbewerb im selektiven Verfahren
Auftraggeber: BLS Immobilien AG
Wettbewerb: 2018, 3. Preis