182BAC
Umbau Bachlettenstrasse, Basel
Direktauftrag
Auftraggeber: Privat
Projekt und Ausführung: 2014
-
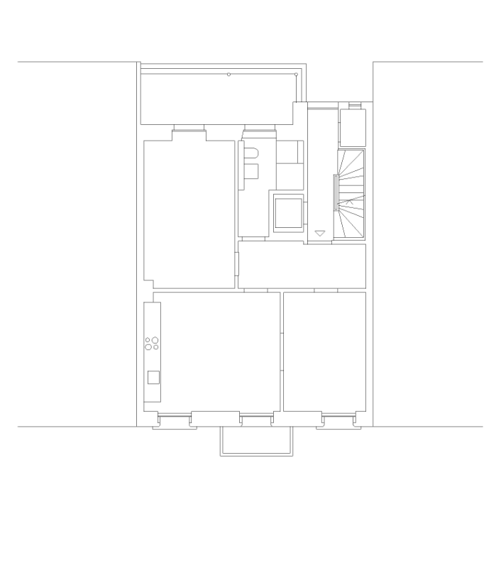
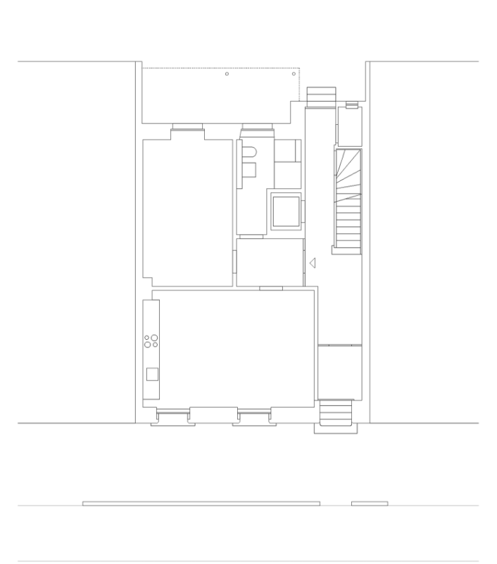
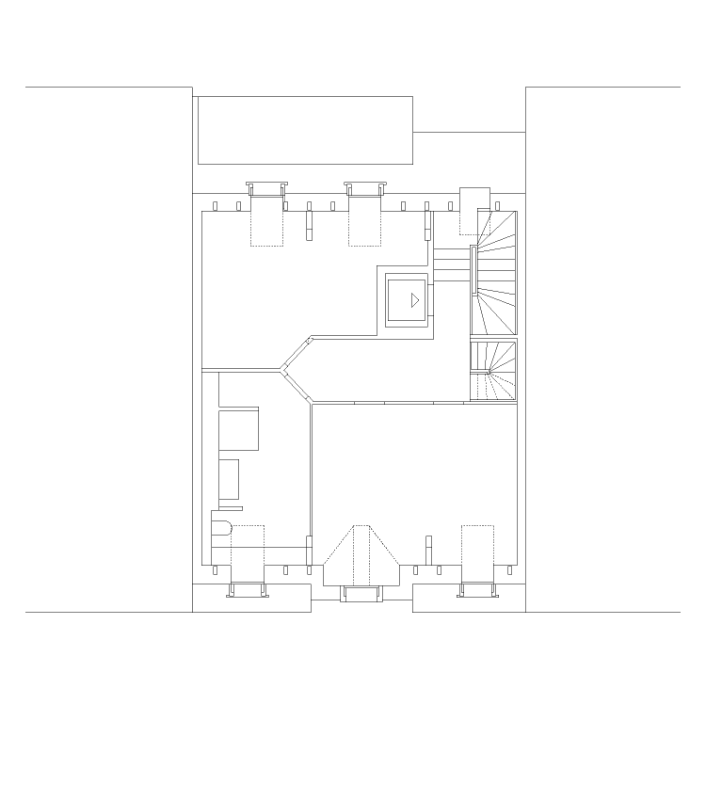
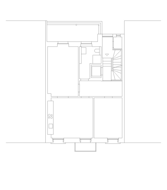
Das Bestandsgebäude – ein einfaches, typisches Baumeisterhaus mit drei Wohnungen in einem Stadterweiterungsquartier des ausgehenden 19. Jahrhunderts – wird in Zusammenarbeit mit der Denkmalpflege sorgfältig instandgesetzt und renoviert und mit einem räumlich kontrollierten Eingriff ein Personenlift eingebaut. Es entstehen, unter grösstmöglicher Schonung des Bestandes, mit Einbezug des Estrichgeschosses, drei schöne Wohnungen, die vom Weitblick in den benachbarten Freiraum des Zoologischen Gartens profitieren.