174DSB
Neubau Departement für Sport, Bewegung und Gesundheit der Universität Basel, St. Jakob, Münchenstein, Basel-Landschaft
Anonymer Projektwettbewerb im offenen Verfahren für Generalpalnerteams
Auftraggeber: Universität Basel, vertreten durch das Hochbauamt Basel-Stadt
Wettbewerb: 2014, 5. Rang
-
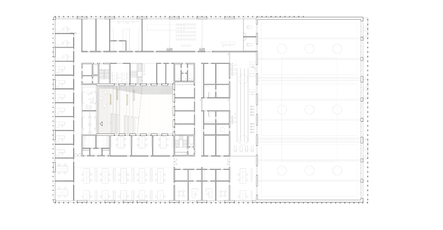
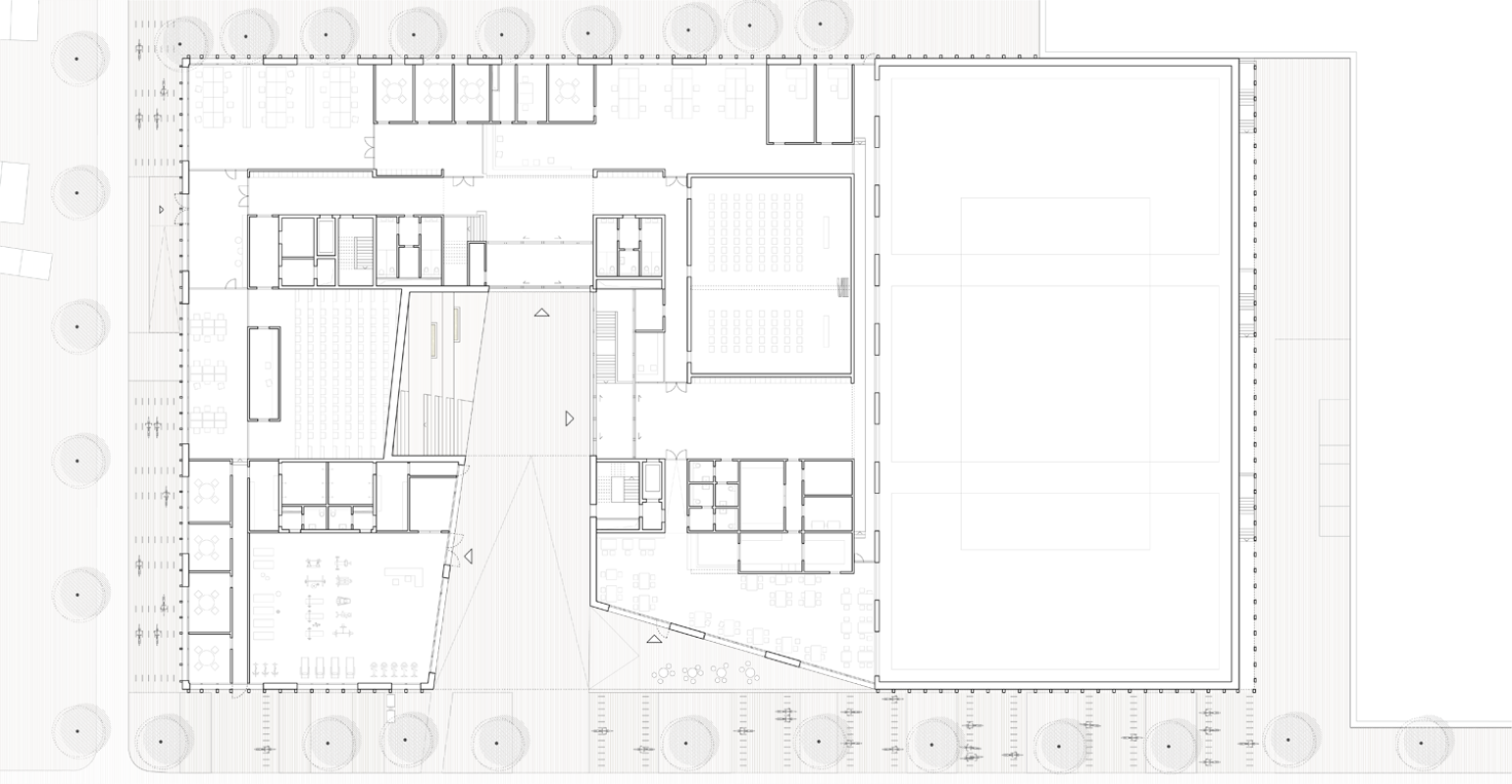
Entspannt, subtil und selbstverständlich fügt sich der Neubau für Sport, Bewegung und Gesundheit der Universität Basel in die qualitativ bedeutende Umgebung mit Gartenbad und Sporthalle St. Jakob ein. Herzstück der Anlage ist eine offene Lobby mit den Eingängen in der Tiefe des Gebäudes. Dieser höchst attraktive Aussenraum, dessen Abtreppung die Decke des darunterliegenden grossen Hörsaals nachzeichnet, bietet eine hohe Aufenthaltsqualität und wird zum Identifikationsträger des neuen Instituts. Die Gebäudehöhe passt sich in die bestehende Situation ein und lässt genügend Spielraum für die künftige Entwicklung einer Schwimmhalle. Während das Erdgeschoss die frequentierten Nutzungen aufnimmt, ist das erste Obergeschoss schwerpunktmässig der Forschung gewidmet, im Untergeschoss befindet sich die Spielebene der Dreifachturnhalle.