168ROM
Römerstadt Augusta Raurica
Neubau Sammlungszentrum
offener, einstufiger Projektwettbewerb
Auftraggeber: Hochbauamt Kanton Basel-Landschaft
Wettbewerb: 2014
-
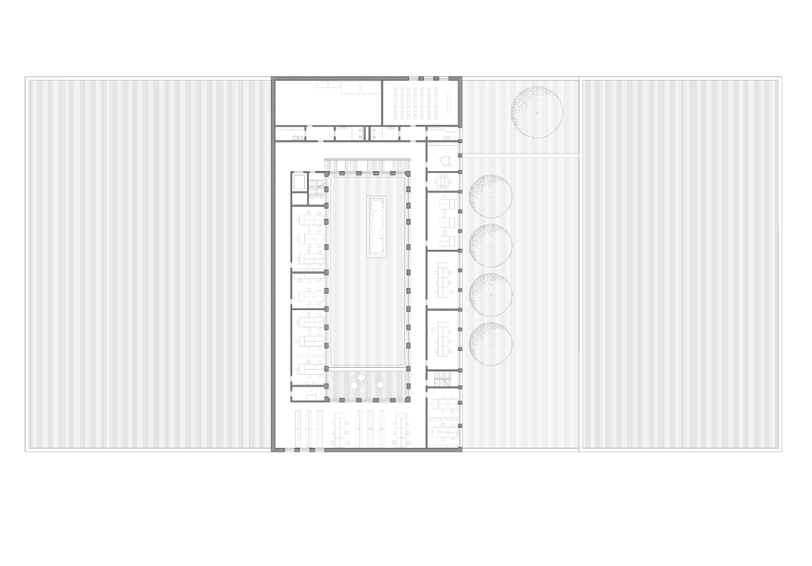
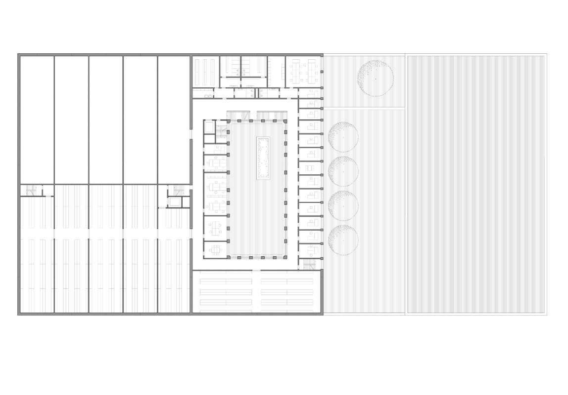
Die klare Form und die spezifische Materialisierung lassen das neue Sammlungszentrum als Teil der Römerstadt erkennbar werden. Die Einfriedung folgt dem Verlauf der Volumetrie. Eine spannende Abfolge von Werkhöfen und Innenhöfen schafft attraktive Arbeitsbedingungen und lässt eine Werkstattatmosphäre entstehen, welche Konzentration und Effizienz verbindet. Die Bewegungen von Menschen, Fahrzeugen sowie jene der Grabungs- und Sammlungsgüter folgen den Anforderungen nach Sicherheit und Schutz und erleichtern die wissenschaftliche Aufarbeitung der Fundstücke im Sinne einer Optimierung des Ablaufes zwischen Anlieferung, Fundinventarisierung, Funddepots und Restaurierung. Das Bürogebäude mit den Werkstätten im Erdgeschoss wird zum pulsierenden Herz der Anlage.