163ZHN
Neubau Universitäres Zentrum Zahnmedizin Basel und Umweltwissenschaften der Universität Basel, Campus Rosental, Basel-Stadt
Anonymer zweistufiger Projektwettbewerb im selektiven Verfahren für Generalplanerteams
Auftraggeber: Kanton Basel-Stadt
Wettbewerb: 2014
-
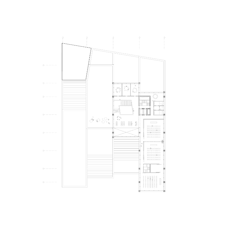
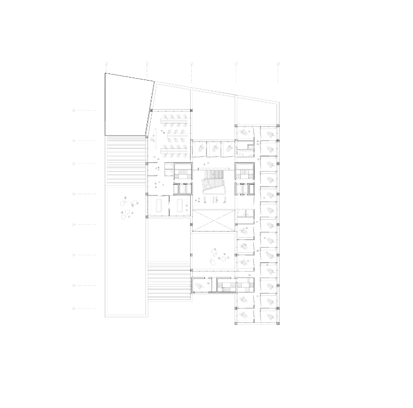
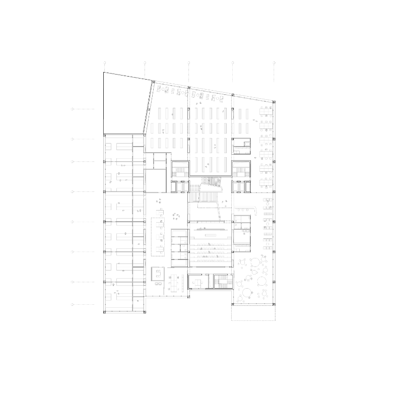
Für das neue Universitätsgebäude der Zahnmedizin und Umweltwissenschaften als Teil des Rosental-Campus wird eine Struktur in parallelen Schichten vorgeschlagen, die langseitig auf die Mattenstrasse und stirnseitig auf die Maulbeerstrasse ausgerichtet sind. Anstelle eines grossen zentralen Lichthofes werden mehrere, differenziert gestaltete und in ihrer dezentralen Lage präzis auf das Raumprogramm abgestimmte Aussenräume angeboten. Dies im Wissen darum, dass der Ort in unmittelbarer Nähe öffentliche Aussenräume anzubieten hat.