106CIT
City-Gate: Wohnhochhaus in Basel
Neubau von 100 Alterswohnungen mit 60 Pflegeplätzen; City Gate-Areal, Basel
Auftraggeber: Basellandschaftliche Pensionskasse BLPK, Liestal
Projekt: 2007 / 2010
Ausführung: 2011-2013
-
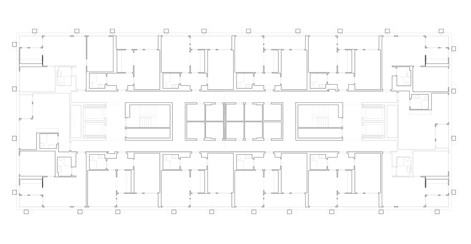
Der Masterplan für die Überbauung Citygate in Basel stammt von Diener & Diener. Mittels vier grossen, locker angeordneten Gebäuden wird im Zusammenspiel mit der bestehenden Villa inmitten von Bäumen ein platzartiger Binnenraum geschaffen. Übergeordnetes Thema der Bauten, die von Luca Selva Architekten, Diener & Diener und Herzog & de Meuron entworfen werden, ist die Waldlichtung. Dementsprechend sind die massiven Betonstützen des elfgeschossigen Wohnhochhauses, dessen Querschnitte sich nach oben verjüngen, so konzipiert, dass sie wie Bäume direkt aus dem Boden zu wachsen scheinen. Drei Stützentypen verleihen der aussenliegenden Tragstruktur eine starke und lebendige Präsenz. Im Parterre befinden sich öffentliche Nutzungen, im ersten und zweiten Obergeschoss die Pflegeabteilung, in den darüberliegenden Etagen rund 100 betreute Wohnungen, deren grundrissliche Eleganz in der äusserst kompakten, wohlproportionierten Anordnung der Räume um die zentral gelegene Küche liegt.
-
-
26.09.2007 — BaZ —
‚Miba-Areal soll zum Architekturpark werden. Herzog & de Meuron, Diener & Diener und Selva Architekten planen auf dem Gelände Neubauten‘
von Patrick Marcolli
[ pdf - 519,089 KB ] -
21.06.2012 — De Aedibus 45 —
Luca Selva Architekten
von Quart Verlag
-
03.03.2014 — Bauen Heute —
City Gate Haus D, Alter- und Pflegezentrum Senevita Gellertblick, Basel
[ pdf - 930,015 KB ] -
28.02.2014 — Hochparterre 3/2014
—
Ein Haus ist kein Baum
von Axel Simon
[ pdf - 4.630,523 KB ]
-
26.09.2007 — BaZ —