076HEGE
Hofbebauung Hegenheimerstrasse Basel
Studienauftrag auf Einladung
Auftraggeber: Wohngenossenschaft Hegenheimerstrasse, Basel
Studienauftrag: 2008, 1. Preis
Projekt: 2009
Ausführung: 2010 -2011
-
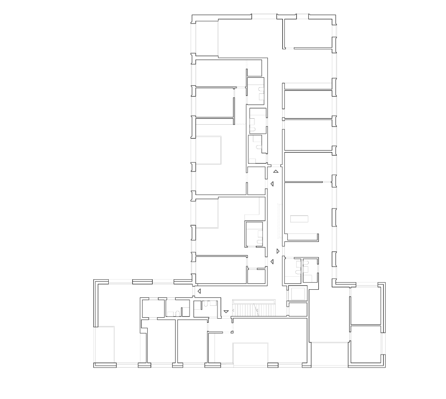
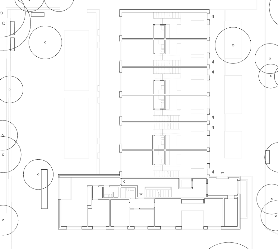
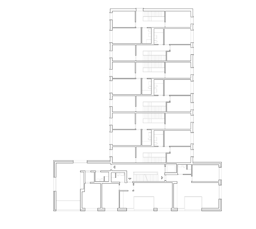
Die spezielle Stimmung eines Hinterhofes prägt den Entwurf auf allen Ebenen. Das Gebäude besteht aus zwei Trakten in Sichtbeton und Kupfer, wobei im Attikageschoss der kupferne Teil auf den Sichtbetontrakt übergreift und vice versa. Während die Maisonetten im kupfernen Teil direkt von aussen erschlossen sind, erfolgt der Zugang zu den Etagenwohnungen äusserst effizient über ein gemeinsames Treppenhaus. Die Wohnungen zeichnen sich durch eingezogene Loggien aus, sind ein- bis dreiseitig orientiert, teils langestreckt mit einem Korridor als Rückgrat oder eher kompakt mit zentralem Wohn- und Essbereich.
-
-
11.08.2011 — BZ —
Von Riesen und Zwergen
von Daniela Meyer
[ pdf - 1.570,737 KB ] -
21.06.2012 — De Aedibus 45 —
Luca Selva Architekten
von Quart Verlag
-
07.11.2012 — BaZ —
Vorbildliches Bauen wird prämiert
von Esther Jundt
[ pdf - 4.202,179 KB ]
-
11.08.2011 — BZ —