068SUED
Städtebauliche Planung Basel-Süd
Studienauftrag auf Einladung
Zonenplanrevision Basel
Testplanung Stadtabschluss Süd
Auftraggeber: Baudepartement des Kanton Basel-Stadt
Projekt: 2007
-
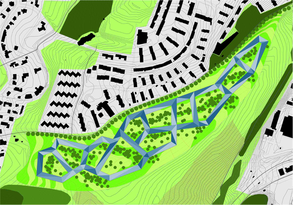
In Zusammenarbeit mit pg landschaften werden in einem Workshop-Verfahren in paralleler Planung das Entwicklungspotential der südlichen Bruderholzflanke in Basel untersucht. Während im Bereich Jakobsberg zusätzliche Impulse in der Art einer städtebaulichen «Akupunktur» vorgeschlagen werden, basiert das Szenario für das Gebiet südlich der Giornicostrasse auf einer Auseinandersetzung mit den topographischen Elementen des Ortes. Dabei werden die vorgefundenen räumlichen Verbindungen von der Bruderholzschulter mit dem Gundeldingerquartier weiter ausgebaut und verstärkt.