Luca Selva Architekten

English
  • News
  • Büro
  • Team
  • Projekte
  • Publikationen
  • Auszeichnungen
  • Ausstellungen
  • Jobs
  • Kontakt

066FALK

Anbau Wintergarten mit Jacuzzi

Direktauftrag

Auftraggeber: Privat

Projekt und Ausführung: 2006/2007

 

  • NWohnungsbau
  • NProjekt
  • NRealisiert
  • NUmbau/Erweiterung
  • SG
  • EG
  • Süd
  • West
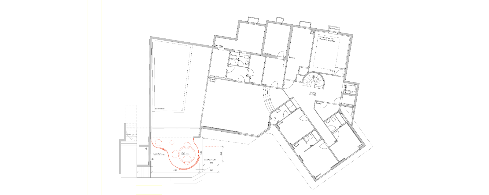
  • Beim bestehenden Einfamilienhaus - 2001 bereits von Luca Selva Architekten erweitert - wurde im Gartengeschoss, dem Hallenbad vorgelagert, ein Anbau mit Jacuzzi entwickelt. Die organische Form kontrastiert die kristalline Form des Bestandes.

  • SG
  • EG
  • Süd
  • West
  • Info
PZurück CÜbersicht WeiterN

Luca Selva AG | Architekten ETH BSA SIA | Viaduktstrasse 12 - 14 | CH - 4051 Basel | T. +41 61 280 78 00 | F. +41 61 280 78 01 | mail@selva-arch.ch

nach oben
esense GmbH - gute webseiten

Diese Website verwendet Cookies und ähnliche Technologien. Mit der Nutzung der Website stimmen Sie der Verwendung von Cookies zu. Weitere Informationen finden Sie in unserer Datenschutzerklärung.