010KALT
Neubau Kaltbrunnen-Schulhaus, Basel
Wymann & Selva Architekten
Wettbewerb auf Einladung
Auftraggeber: Kanton Basel-Stadt
Wettbewerb: 1993, 1. Preis
Projekt und Ausführung: 1994-1996
-
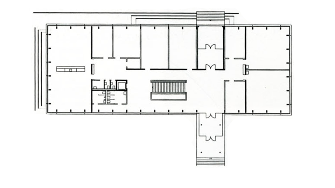
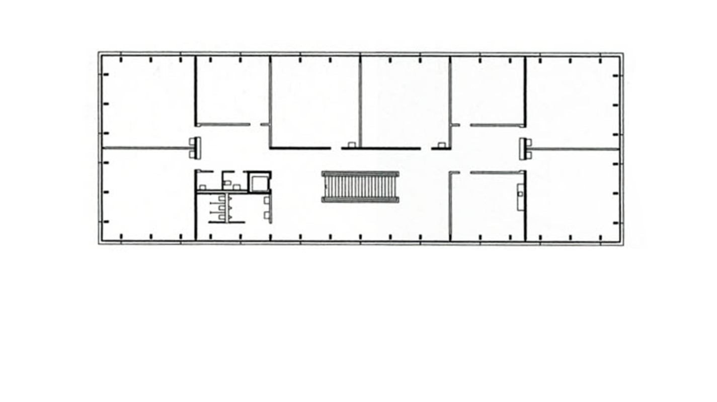
Die markante Zäsur der französischen Bahnlinie und die Verkehrsachse des äusseren Rings prägen den Ort, der eine Nahtstelle zwischen der Stadt der Jahrhundertwende, der Bebauung der 20er-Jahre und den Zeilenbauten der 50er-Jahre darstellt. Die bestehende Schulanlage von G. Panozzo wird im Nordwesten durch die Allerheiligenkirche von Hermann Baur begrenzt. Während im neuen Klassentrakt sämtliche Unterrichtsräume angeordnet sind, nimmt das zweite Gebäude Aula und Turnhalle auf. Im Verbund mit dem Bestand entsteht eine neue, in sich verständliche städtebauliche Ordnung. Geschosshohe, als transparente oder reflektierende Glaspaneele ausgebildete Elemente prägen das Äussere des Klassentraktes. Die Hülle der Aula besteht aus Glaselementen mit Glasgespinsteinlagen. Im Innern entsteht so der Eindruck einer transluziden, papierenen Fassade, und nachts tritt das Gebäude als grosser Leuchtkörper in Erscheinung.
-
-
03.06.1996 — Archithese 6/96 —
‚Leuchtkörper, Kaltbrunnen-Schulhaus Basel‘
von Andres Janser
[ pdf - 1.588,165 KB ] -
03.06.1996 — Stadtbuch 1996, CMV, Basel —
‚Die Basler Schulreform‘
von Lutz Windhöfel
[ pdf - 243,663 KB ] -
23.05.1997 — Aargauer Zeitung, Kultur —
‚Räume von Gehalt, Räume der Erinnerung‘
von Carmen Humbel
[ pdf - 899,692 KB ] -
01.05.1997 — Arkitekten 13 (DK) 05/1997 —
‚Tre Schweizeriske Skoler‘
von Lene Dammand Jensen
[ pdf - 656 KB ] -
01.12.1997 — AW Architektur + Wettbewerbe (D) 12/1997 —
‚Weiterführende Schule: Kaltbrunnen-Schulhaus‘
von Friedrich Grimm (Hrsg.)
[ pdf - 596,347 KB ] -
01.05.1998 — werk, bauen + wohnen 5/1998 —
Kaltbrunnen-Schulhaus Basel Werkmaterial
[ pdf - 1.051,061 KB ] -
01.05.1998 — tain, Kunst & Design, 5/6//1998 (D) —
‚Schule mit Durchblick‘
von Christina Haberlik
[ pdf - 1.784,885 KB ] -
02.11.1998 — Revista de Arquitectura a+t —
Dos Edificios Escolares en Basilea (Two School Buildings in Basel)
by Aurora Fernandez
[ pdf - 1.018,512 KB ] -
01.01.2000 — Architektur für Basel 1990 - 2000 —
Baukultur eines Kantons ‚Schulbau-Kaltbrunnen-Schulhaus‘
von Ulrike Zophoniasson-Bayerl
Birkhäuser-Verlag, Basel 2000
[ pdf - 467,767 KB ] -
01.01.2004 — Architekturführer Basel 1980-2004 —
2. überarbeitete Auflage, Birkäuser-Verlag, Basel 2004
von Lutz Windhöfel
[ pdf - 2.226,684 KB ]
-
03.06.1996 — Archithese 6/96 —